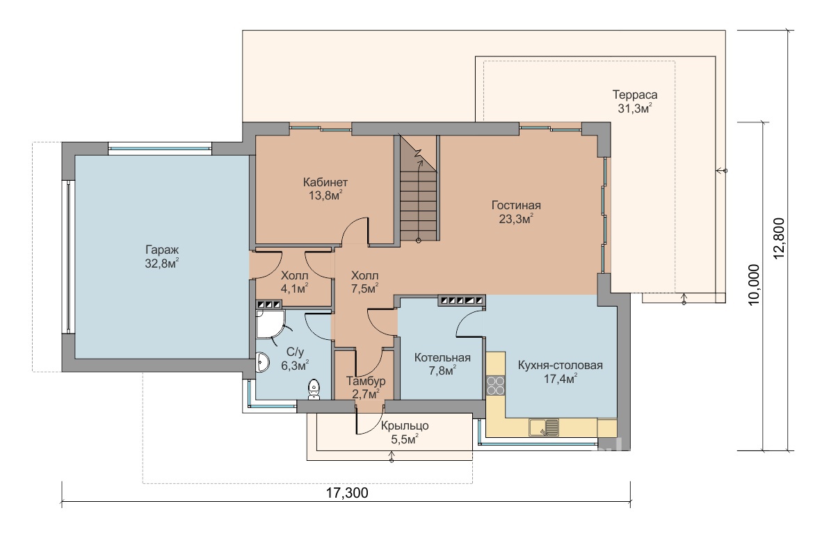
Это проект дома в современном стиле в два этажа, отличный вариант для большой семьи. Главным украшением этого коттеджа выступают оригинальные архитектурные решения по остеклению. Совмещённые кухня и гостиная позволит проводить большие семейные праздники и вечерние встречи друзей. Этот великолепный и просторный дом порадует тех, кто любит комфорт, обилие света и ультрасовременный дизайн.
